食武士—会跳舞的舒芙蕾
预约设计师
享受私属定制设计服务!
联系我们
地 址:南京市鼓楼区东宝路8号时代天地广场1栋1413室
电 话:13913865586
传 真:025-8681468
E-mail:748246044@qq.com
填写您的项目信息
食武士—会跳舞的舒芙蕾
项目名称:食武士.会跳舞的舒芙蕾
建设地点:中国南京
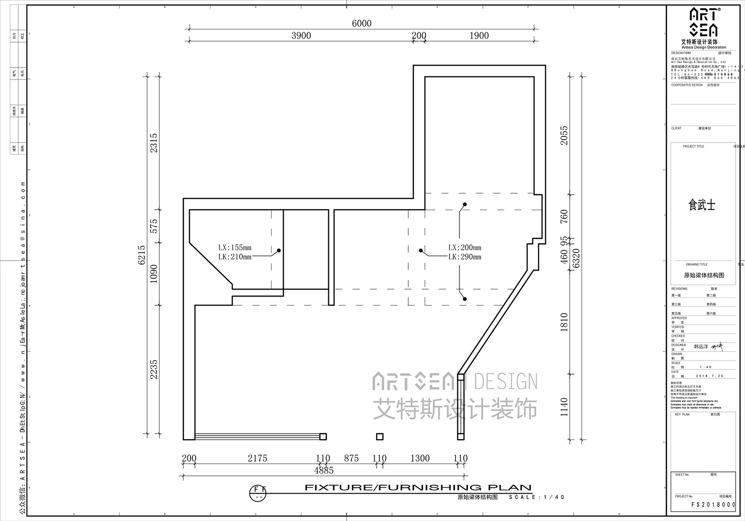
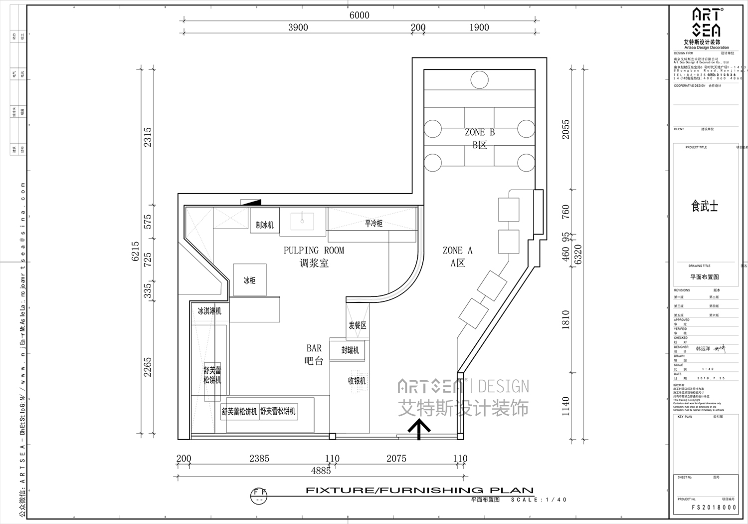
建筑面积:25平方米
完工时间:2018.09
摄影:ing
食武士品牌是一家主打舒芙蕾的特色甜品店,这是一家连锁品牌店;这家坐落于南京地标性商业中心新街口明瓦廊小吃街,这里是时尚年轻人的聚集地,客户希望打造一个特别的舒芙蕾甜品店。
这个店面的空间比较特殊,是在一个楼梯的下面,所以平面跟顶面都很不规整。因为舒芙蕾甜品都是手工现做,遇到外面的冷空气后会收缩,失去轻盈的口感,所以业主要求必须有堂食的位置。在这不规则的25个平方米,想要放置常规的桌椅是不太现实的,所以将空间的缺点利用为优点设计了阶梯式的座位,这样不仅可以有更多的堂食位置,也能让空间多一些层次。在卡座边上,设计定制可以活动收进去的小桌子,巧妙的解决了座位与空间的问题。






整体色调以祖母绿与黄铜色为主,衬托出空间的尊贵感、时尚感与文化感,浅木色的饰面与绿植又能体现出甜品店温馨与自然。为了使整体空间通透有趣味,我们将后场操作区域用长虹玻璃隔开。



在平面布置,立面方案中,将浪漫的圆弧拱形设计元素融入到整个空间。从平面的圆弧形隔墙到玻璃明档的拱形装饰,从大门的造型到吧台的装饰吊架,从定制的小方桌到立面装饰的绿植墙,圆弧拱形元素贯穿始终。




Reservation design service
预约设计服务
有关我们服务的更多信息,请联系
152 5182 1889 韩先生 / 139 1386 5586 章女士
Copyright 2024 木森体育官网 All Rights
Add:南京市鼓楼区东宝路8号时代天地广场1栋1413室
Tel:13913865586 Fax:025-8681468 E-mail:748246044@qq.com 苏ICP备19048366号